19036 Newburg Hill RoadDavidson, NC 28036




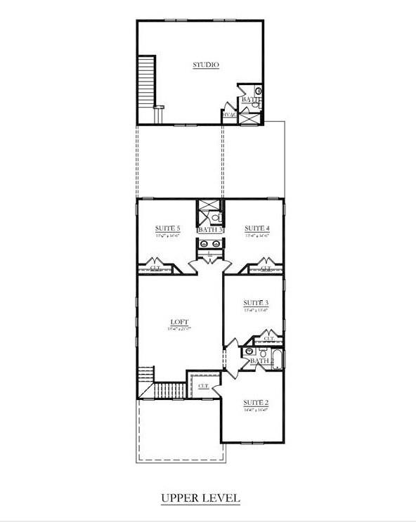
Step into the elegance of Davidson Woods, where modern design meets timeless comfort. This home is more than a place to live—it’s lifestyle. Imagine mornings filled with natural light streaming through expansive windows, evenings gathered in a gourmet kitchen that inspires culinary creativity, and weekends entertaining in a family room that flows seamlessly into dining and outdoor living spaces. The Huntley Plan was crafted for both convenience and luxury, with a primary suite on the main level that feels like a private retreat, complete with an oversized closet and direct access to the laundry room. Guests or extended family will love the versatile studio suite above the garage, offering privacy and flexibility for long stays, a home office, or even a creative workshop. Every detail speaks to quality and sophistication, from the premium cabinetry to the covered outdoor living space designed for effortless entertaining. And because this home is ENERGY STAR Certified, you’ll enjoy lower utility bills, healthier indoor air, and the peace of mind that comes with owning a property built to rigorous performance standards by an award winning builder. Living in Davidson Woods means more than owning a home—it means joining one of the area’s most prestigious communities, where craftsmanship, comfort, and convenience come together to create the perfect setting for your next chapter.
| 2 days ago | Listing first seen on site | |
| 2 days ago | Listing updated with changes from the MLS® |
Listings courtesy of Canopy MLS as distributed by MLS GRID. Based on information submitted to the MLS GRID as of {last_incremented_at}. All data is obtained from various sources and may not have been verified by broker or MLS GRID. Supplied Open House Information is subject to change without notice. All information should be independently reviewed and verified for accuracy. Properties may or may not be listed by the office/agent presenting the information. Some IDX listings have been excluded from this website. Properties displayed may be listed or sold by various participants in the MLS. ©2025 Canopy MLS.
The Digital Millennium Copyright Act of 1998, 17 U.S.C. § 512 (the “DMCA”) provides recourse for copyright owners who believe that material appearing on the Internet infringes their rights under U.S. copyright law. If you believe in good faith that any content or material made available in connection with our website or services infringes your copyright, you (or your agent) may send us a notice requesting that the content or material be removed, or access to it blocked. Notices must be sent in writing by email to [email protected]. “The DMCA requires that your notice of alleged copyright infringement include the following information: (1) description of the copyrighted work that is the subject of claimed infringement; (2) description of the alleged infringing content and information sufficient to permit us to locate the content; (3) contact information for you, including your address, telephone number and email address; (4) a statement by you that you have a good faith belief that the content in the manner complained of is not authorized by the copyright owner, or its agent, or by the operation of any law; (5) a statement by you, signed under penalty of perjury, that the information in the notification is accurate and that you have the authority to enforce the copyrights that are claimed to be infringed; and (6) a physical or electronic signature of the copyright owner or a person authorized to act on the copyright owner’s behalf. Failure to include all of the above information may result in the delay of the processing of your complaint.
Last checked - 2025-12-04 07:47 AM UTC
Work With Who Works!
We Appreciate your interest and visiting our website.
We’ve just recently completed Our New Website. It has been Streamlined to allow you to quickly access the resources you need, in order to work with us most efficiently.
From our Menus you should still be able to Keep in Touch with Us, access your Client Portal, and Search and Monitor properties you are interested in.
We very much look forward to working with you.








Did you know? You can invite friends and family to your search. They can join your search, rate and discuss listings with you.